Gold Winner of the Design Skill Awards 2025

AGROCEL HOUSE Corporate Office Interior

Interior

Best Workplace & Office Interior Design

Completed / Professional

dsa-cover-image-dsa25308d20a8cb-q.jpg

Architect / Designer:

Architect Rajesh Patel

Studio:

ARP Studio

Design Team:

ARP Studio Design Team:- Vishal Parmar, Ankit Jain, Vishal Sawant, Dighant Moolya,

Parametrics:- Seeja & Khushbu of Studio Emergence

MEP Consultant:- R. N. Joshi of ARKK Consulting

PMC Consultants:- Devidas Auti of DACPL

Kitchen Consultant:- Abhay Kulkarni

Copyright:

Ravi Kanade – Studio SP_Photography

Country:

India

Harmonizing Tradition and Innovation

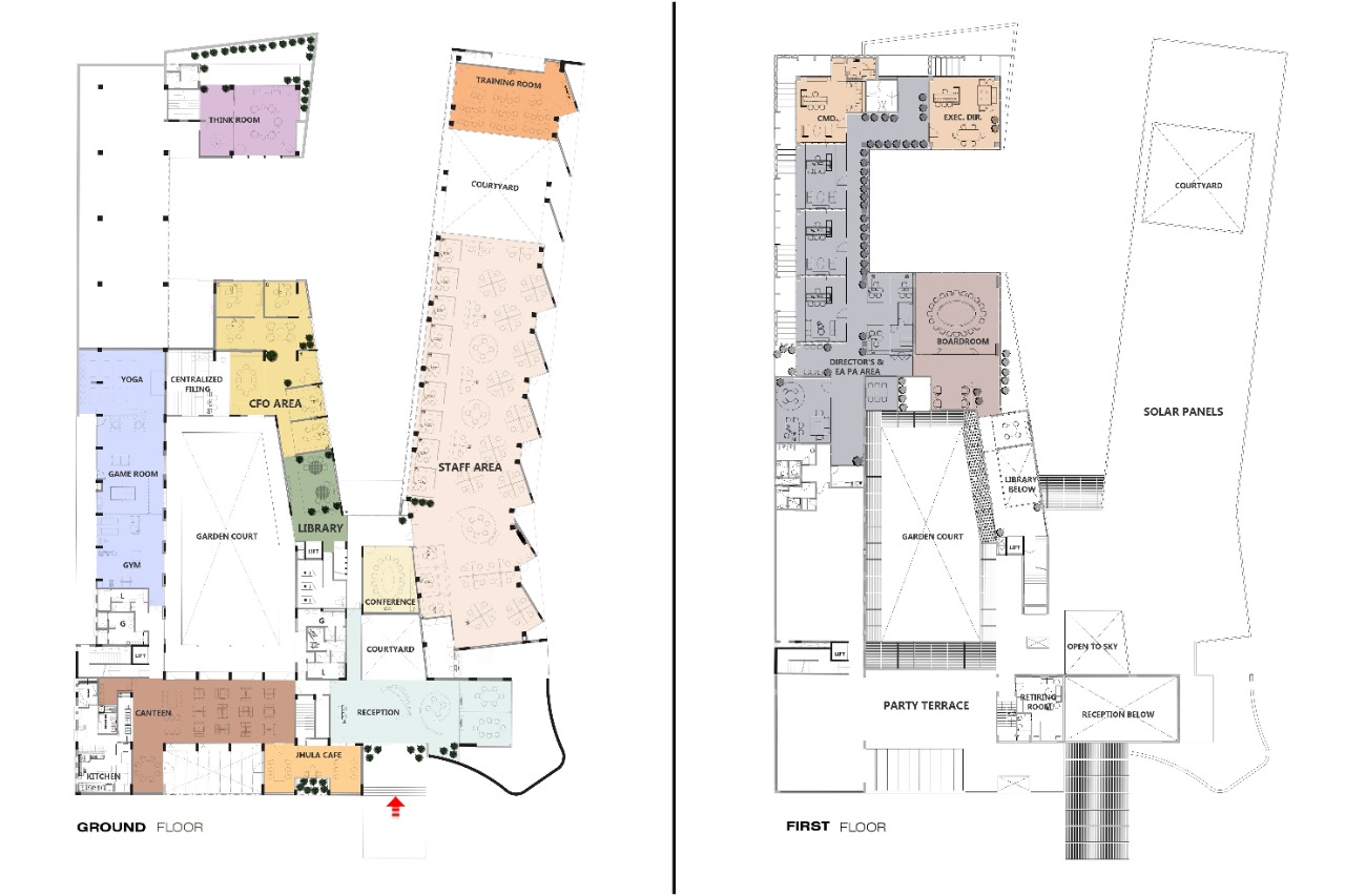
AGROCEL HOUSE – Corporate Office Interior @ Bhuj, Kachchh, Gujarat State, India
32000 sft (2973 Sq. Mt)

A corporate office today is more than a workspace—it embodies an organization’s ethos, culture, and aspirations. The design of Agrocel House seamlessly weaves Indian tradition with futuristic parametric expressions, creating a workspace that is functional, sustainable, and deeply human in spirit.

Celebrating Indian Tradition

Rooted in the cultural fabric of Kachchh, the design honors Indian craftsmanship. Collaborations with local artisans infuse the interiors with intricate woodwork, handwoven textiles, and indigenous art—each element narrating a story of heritage. The use of locally sourced materials ensures authenticity while strengthening community livelihoods.

Parametric Design: The Future Forward

In contrast to traditional textures, parametric interventions introduce a sense of movement and modernity. Dynamic lighting, sculptural furniture, and fluid spatial forms reflect the company’s progressive mindset—melding art, technology, and adaptability into a cohesive visual identity.

Functional and Flexible Planning

Every spatial decision stems from efficiency and human comfort. Ergonomic workstations, collaborative hubs, and quiet zones are organized to support focus and interaction. Modular furniture and open layouts allow fluid reconfiguration, nurturing flexibility and creativity within teams.

Sustainability and Social Responsibility

Sustainability is embedded at every level—from material selection to operational systems. Eco-friendly finishes, solar energy integration, rainwater harvesting, and waste recycling reduce the ecological footprint. Engagement with local craftsmen reinforces social sustainability and responsible design ethics.

A Warm, Inviting Experience

The ambience exudes warmth through natural light, soft palettes, and biophilic touches. Green pockets, art installations, and rejuvenation zones encourage well-being and informal collaboration. The cafeteria and lounge areas foster community, making the workspace feel like a collective home.

Conclusion

Agrocel House represents a rare equilibrium—where tradition meets technology, and sustainability meets style. It stands as a testimony to India’s living craft heritage and its evolving design future—a place where people feel inspired to work, connect, and innovate every day.

ARP Studio

ESTABLISHED DESIGN STUDIO IN 1979 IN MUMBAI.

SINCE THEN, WORKED ON VARIOUS ARCHITECTURAL AND INTERIOR PROJECTS IN PARTICULAR CORPORATE OFFICES, LABORATORIES, HIGH END VILLAS, APARTMENTS & EDUCATIONAL INSTITUTES IN DUBAI, SINGAPORE, SYDNEY AND MUMBAI.

FELLOW OF INDIAN INSTITUTE OF ARCHITECTS AND FELLOW OF INSTITUTE OF INDIAN INTERIOR DESIGNERS. ALSO SERVED AS PRESIDENT OF IIID DURING 1998-2000. INSTITUTED & CHAIRED FIRST IIID AWARDS FOR EXCELLENCE IN 1996.

AWARDS & RECOGNITION

– WINNER – WORLD ARCHITECTURE COMMUNITY AWARDS 2025

– WINNER – ET REALTY DESIGNSCAPE AWARDS 2024 FOR CORPORATE OFFICE INTERIOR DESIGN

– EXCELLENCE AWARD BY SMART SPACE AWARDS 2024 FOR S. P. JAIN SCHOOL OF GLOBAL MANAGEMENT, MUMBAI CAMPUS (RUNNER UP)

– IIID DESIGN EXCELLENCE – NATIONAL AWARD FOR INSTITUTIONAL & PUBLIC SPACES

– HONORARY AWARD 2024 AS A DISTINGUISHED ARCHITECT / INTERIOR DESIGNER AND FOR CONTRIBUTIONS TO THE INDUSTRY, BY INSTITUTE OF INDIAN INTERIOR DESIGNERS –