BIGVILLE LAVITA
Architecture
Best Residential Architecture
Concept / Professional
Architect / Designer:
Studio:
Design Team:
Country:
The Lavita residential project was developed for a leading Kazakh developer in Astana and forms part of a large new urban district located along the city’s expanding boundary. Conceived as a modern and human-scaled neighborhood, the district integrates multiple residential typologies – from multi-family buildings to townhouses and private villas – creating a diverse yet cohesive urban fabric.
Within this context, Lavita represents an exclusive block of private villas designed as an open and integrated fragment of the city rather than a secluded enclave. The masterplan balances privacy with connectivity: while each villa offers a sense of retreat, all residents remain visually and spatially linked to the life of the surrounding neighborhood.
A green pedestrian promenade runs through the heart of the block, acting as a social spine that encourages daily encounters, fosters community interaction, and connects shared green zones with private gardens. This design approach strengthens the sense of belonging and promotes sustainable, walkable living.
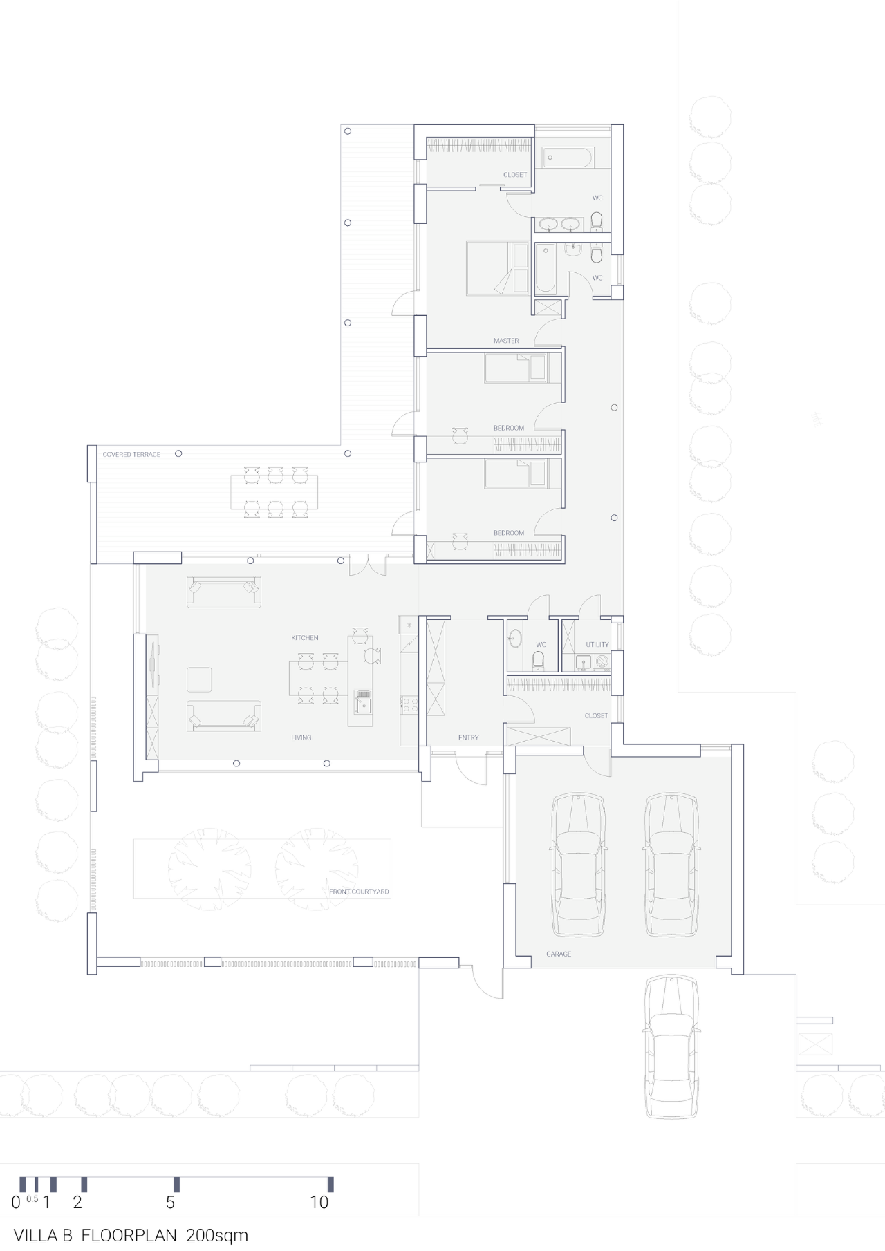
The villas were developed in six typologies varying in size, layout, and number of floors – from compact one-story houses to larger two-story family villas. This diversity accommodates a broad range of lifestyles and family structures. Despite their differences, all units follow a unified planning logic: street-facing entrances extend the social interface, while private areas open toward inward courtyards, ensuring intimacy and natural light.
Architecturally, Lavita combines coherence and individuality. A consistent material palette and rhythmic façade composition create visual harmony, while subtle variations in proportion and detail lend each villa its own identity.
The 6.3-hectare site comprises 49 villas with a total built-up area of 12,300 square meters. Together they form a distinct, harmonious residential environment – contemporary, comfortable, and deeply connected to its urban and natural context.
PrivateHouse
PrivateHouse Architects is an international architectural bureau specializing in master planning, contemporary architecture, and premium residential design. Founded in 2011, the studio operates across Kazakhstan, Poland, and Saudi Arabia, delivering projects that combine aesthetic clarity, functional precision, and cultural sensitivity.
Our portfolio includes large-scale urban developments, mixed-use complexes, and exclusive private residences, created for leading developers such as BI Group, Sensate, and SBI Development. Each project reflects our guiding philosophy – to design spaces that elevate human experience through harmony between architecture, landscape, and technology.
We approach every task as a dialogue between context, nature, and innovation. Our multidisciplinary team integrates architecture, interior design, and landscape planning, supported by AI-driven visualization and BIM technologies to ensure precision and efficiency at every stage.
PrivateHouse Architects stands fo









